
RENÉ
A Contemporary Chalet Restaurant
The restaurant concept is a contemporary interpretation of the chalet style.
Throughout the design process, the concept evolved and was refined, adapting to the space and the ambitions of the venue. Our goal was to create an interior that balances luxury and comfort, combining refined elegance with a sense of warmth.






The space is built on contrasts: an abundance of wood and metal, paired with an industrial ceiling at the center of the hall, shapes an atmosphere of restrained, brutal luxury. At the same time, these industrial elements are softened by classical and neoclassical details, resulting in a layered and visually rich interior.






We paid close attention to every detail, forming a complex and multifaceted composition. The restaurant interior was conceived as a dense, immersive environment—one that cannot be fully perceived in a single visit. This intentional complexity sustains guests’ interest and contributes to the venue’s distinctive identity.








The ceiling plays a key role in the spatial narrative, combining three different types of finishes.
At the center of the hall, an industrial ceiling introduces a contemporary, raw character. Along the perimeter, it contrasts with classical wooden coffers—warm, inviting, and more traditional in nature. This juxtaposition creates a strong visual contrast while adding rhythm and spatial zoning.








Above the bar, fireplace, and the striking wine display, a mirrored ceiling has been introduced. It creates the impression of a double-height space, visually increasing the height of the shelving, fireplace, and wine cabinet, enhancing their scale and dramatic presence.
The entrance groups are designed in a non-standard manner. The restaurant features two distinct entrances, each with a strong architectural expression. Inspired by Parisian shopfronts, they incorporate articulated façades, classical proportions, and softly rounded corners. These elements are reinterpreted through the project’s signature brutality—expressed in black blued metal and rough, textured wooden panels.








The flooring features a particularly expressive combination of materials. Three types of finishes are used: a rough chalet-style parquet reminiscent of mountain lodges, black natural stone, and decorative mosaic inserts that introduce a note of refinement. These materials are composed into a unified pattern centered around the main columns of the hall.
Several types of columns, each with a distinct stylistic treatment, are present in the interior.
The central columns are rounded and feature neoclassical proportions, accented with a brutal detail—integrated wall sconces made of blued metal. The perimeter columns are left in exposed concrete and enclosed in metal frames, their forms referencing the architecture of historic Parisian railway stations.






All lighting was custom-designed and produced specifically for the project. Classical chandeliers in the center of the hall and contemporary crystal chandeliers along the perimeter add a sense of luxury against the backdrop of raw materials. Near the wine display, a large custom-made copper chandelier with a modern form serves as a focal point.
Special attention was given to the furniture design. Every chair and sofa was meticulously developed and features bespoke upholstery and finishes. Each piece combines several materials, creating a layered, sophisticated, and expressive aesthetic.








The banquet room functions as a distinct, self-contained space with its own fireplace, adding both intimacy and visual impact. It is spacious, filled with natural light through multiple windows, and completed by an expressive custom glass chandelier that emphasizes its elegance and status.
















О проекте в цифрах
Step-by-step process that ensures flawless results

01.Workshop:
Rene Project: Turning Complex Layout Challenges into Advantages
Work on any project begins with in-depth analysis. We gather and study every factor — from the landscape to guest circulation flows — that will later become the foundation of the planning concept.
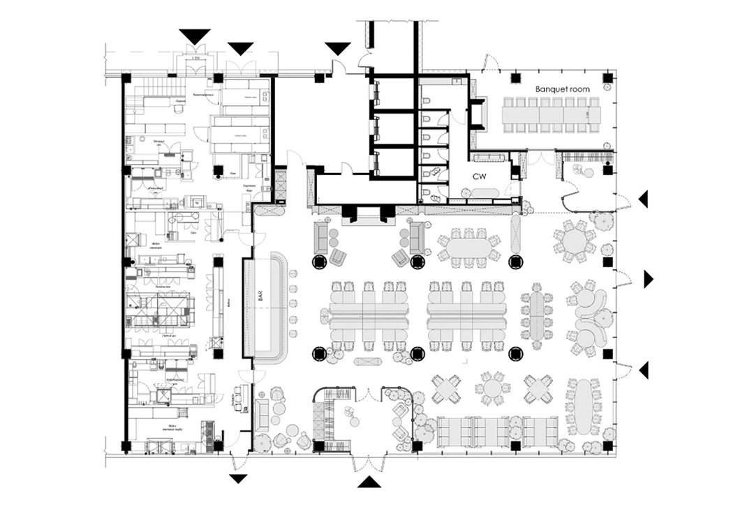
The Rene restaurant is located in Bukovel, on the ground floor of a contemporary residential complex. The location is highly advantageous, yet it presented us with three major challenges.




1. Panorama vs. Functionality
The space has spectacular viewpoints: two sides of the building fully face the lake and the forest. However, a paradox emerged — the main flow of guests arrives from the side with the most impressive view.
The challenge:
Guests need an entrance lobby and a cloakroom. If placed in the standard way near the entrance, they would block the view completely, depriving the dining area of natural light and its main visual advantage.

The solution:
We approached the problem with precision. The entrance zone was designed as a compact square volume inserted directly into the dining hall. To avoid creating a visual barrier, the lobby walls were made of glass, allowing sunlight to penetrate deep into the restaurant.
As a result, guests entering the space do not see solid walls but rather a glimpse of the vibrant interior beyond. The entrance structure itself was styled with references to Parisian industrial-style storefronts, transforming a purely functional element into a distinctive architectural feature.



2. Ski-in Logistics and Terrace Comfort
A ski slope runs directly next to the restaurant — a major advantage, as skiers can access the terrace straight from the slope. However, this created a significant logistical challenge.
The challenge:
The main entrance is located on the opposite side of the building. Guests in ski equipment would have had to walk all the way around the building to get inside. Additionally, the terrace had no dedicated restrooms, and reaching the interior facilities through the entire dining area would have been inconvenient for both skiers and other guests.
The solution:
We made a strategic decision to introduce a second full-scale entrance directly from the slope side. Although this reduced the usable area of the dining room, it significantly improved ergonomics.
Now the path from the ski slope to a table or restroom is as short as possible, and the guest flows from the street and the terrace no longer intersect chaotically.




3. Creating Depth in the Dining Space
The interior space is almost square and relatively deep. Two walls are solid (adjacent to the kitchen and elevator lobby), which created the risk of “unpopular” seating areas.
The challenge:
Tables by the windows overlooking the lake will always be the most desirable. The question was how to make seating deeper inside the hall — without windows — feel equally attractive.
The solution:
We turned this limitation into a creative opportunity. The solid interior surfaces became the perfect canvas for expressive design elements.
On the central axis of the entrance, we placed a large fireplace that immediately draws attention and creates a sense of warmth. Nearby, an impressive bar with floor-to-ceiling shelving appears, framed by natural stone walls.
Thanks to this layered interior composition, the seating deeper inside the restaurant became intimate, atmospheric, and just as appealing as the tables by the panoramic windows.

02.Concept:
Concept Stage: Crossing Alpine Chalet with Bold Decadence
The first meetings with the client set an incredibly exciting challenge. We were not asked to design just another restaurant, but rather an “explosive mix”: a contemporary interpretation of a mountain chalet — without direct quotations.
It had to combine luxury, neoclassical elegance, and the atmosphere of a wild mountain party — refined, expensive, slightly daring, with a subtle touch of decadence.
This was one of those rare cases when the client doesn’t say, “Make it like the place next door”, but instead aims to create an entirely new visual code.





The Challenge: Staying on Course
Designing such a complex blend requires significant effort. The main risk is spending weeks modeling furniture and producing renderings, only to hear: “This isn’t quite what we imagined.”
To avoid that scenario, we structured the process carefully.
AI Prototyping
We used neural networks (Midjourney) not to produce ready-made solutions, but to explore the temperament of the interior. Dozens of variations were generated to find the exact balance between the warmth of wood and the boldness of neoclassical elements.
This allowed the client to literally feel the atmosphere even before the first drawings were produced.
Iterative Development
We deliberately avoided the typical “disappear for a month and present the final concept” approach. Instead, we moved forward step by step, meeting regularly with the client and refining each new fragment of the interior based on feedback from the previous stage.





Did Everything Go Smoothly?
Honestly — no.
Although the client immediately fell in love with the mood created by the AI concepts, we still encountered a few hidden pitfalls. The desire to move quickly into full visualizations meant that several important elements of the dining space were not defined in enough detail during the concept stage.
The Consequences
This led to intensive exploration during the final rendering phase. Some architectural nodes had to be redesigned on the fly, which extended the timeline and required additional resources from the team.
Lesson Learned
Even if a client is enthusiastic about the overall mood, every strategic element of the space must be supported by a reference. Not a literal copy, but at least a clear visual direction.
Hoping that “everything will magically come together during the process” is an illusion that costs time. Careful preparation at the start is the only reliable way to save both nerves and budget by the finish line.






03.Development:

04.Implementation:
Project showreel


